2 Room Apartment in Les Saisies 6 people
Presentation
Lovely, comfortable residence with a mountain feel, ideally located close to the slopes and Nordic ski area.
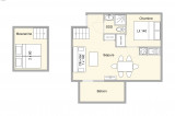
2-room apartment with mezzanine on the 3rd floor of the residence without lift, north-facing with balcony.
The apartment has a living room with a 140cm sofa bed and open-plan fitted kitchenette, a bedroom with a 140cm bed (velux opening), a mezzanine with two 80cm beds side by side (access to the mezzanine is via a steep staircase not suitable for small children) and a shower room with separate WC.
Rental classified 'QUALITE CONFORT HEBERGEMENT' Quality Comfort Accommodation in Les Saisies: 3 diamonds.
This apartment is officially classed as 2-star furnished holiday accommodation (Meublé de Tourisme).
Housekeeping category: G
2-room apartment with mezzanine on the 3rd floor of the residence without lift, north-facing with balcony.
The apartment has a living room with a 140cm sofa bed and open-plan fitted kitchenette, a bedroom with a 140cm bed (velux opening), a mezzanine with two 80cm beds side by side (access to the mezzanine is via a steep staircase not suitable for small children) and a shower room with separate WC.
Rental classified 'QUALITE CONFORT HEBERGEMENT' Quality Comfort Accommodation in Les Saisies: 3 diamonds.
This apartment is officially classed as 2-star furnished holiday accommodation (Meublé de Tourisme).
Housekeeping category: G
Resume
- ACCOMMODATION TYPE :
- two rooms apartment
- Location :
- Les Saisies village center
- PETS :
- pets allowed
- pets allowed with extra charge
- small pets accepted
- MAXIMUM CAPACITY :
- 6 people
- FLOOR FROM THE GROUND :
- 3rd floor
- ORIENTATION :
- North orientation
Equipements
- ROOM 1 :
- 1 double bed(s) (size: 140)
- MEZZZANINE :
- 2 single bed(s) (size: 80)
- PARKING / GARAGE :
- indoor parking with extra charge
- BATHROOMS :
- 1 bathroom(s) with shower
- LAVATORY :
- 1 Toilets inside the bathroom
- EQUIPMENTS :
- ski locker
- vacuum cleaner
- OUTSIDE :
- balcony

















