2 Room Apartment in Les Saisies 6 people
- Not classified
Presentation
Small, quiet residence, located halfway between the ski slopes and ESF meeting points, and the resort centre. Access via a kept path.
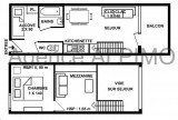
2-room apartment with alcove and mezzanine on the 2nd floor of the residence without lift (2 floors to climb for access), facing southeast with balcony.
The apartment has a living room with a 140cm sofa bed, a fully-equipped kitchenette, a bathroom and separate WC, an alcove with 2x80cm bunk beds (NB: the top bunk is not suitable for children under 6), and upstairs a bedroom with a 140cm bed and a mezzanine overlooking the living room.
Housekeeping category: E
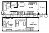
2-room apartment with alcove and mezzanine on the 2nd floor of the residence without lift (2 floors to climb for access), facing southeast with balcony.
The apartment has a living room with a 140cm sofa bed, a fully-equipped kitchenette, a bathroom and separate WC, an alcove with 2x80cm bunk beds (NB: the top bunk is not suitable for children under 6), and upstairs a bedroom with a 140cm bed and a mezzanine overlooking the living room.
Housekeeping category: E
Resume
- ACCOMMODATION TYPE :
- two rooms apartment
- Location :
- Les Saisies village center
- PETS :
- pets not allowed
- MAXIMUM CAPACITY :
- 6 people
- FLOOR FROM THE GROUND :
- 2nd floor
Equipements
- Alcove :
- 1 banked beds
- CABIN :
- 2 banked beds
- ROOM 1 :
- 1 double bed(s) (size: 140)
- Bedding :
- 2 duvet(s) single
- single cover(s)
- 2 double duvet(s)
- 7 pillow(s)
- 3 bolster(s)
- PARKING / GARAGE :
- indoor parking with extra charge
- BATHROOMS :
- 1 bathroom(s) with bathtub
- LAVATORY :
- 1 Separate toilets
- EQUIPMENTS :
- ski locker
- vacuum cleaner
- KITCHEN EQUIPMENTS :
- oven
- OUTSIDE :
- balcony



















