2-room apartment Les Saisies
Presentation
Small residence located in the Carrets sector, with easy access to the resort centre, slopes and ESF meeting points via a groomed path.
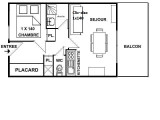
2-room apartment on the 1st floor of the residence without lift (2 floors to climb), south/east facing with balcony.
The apartment has a living room with a 140cm sofa bed, a fully-equipped kitchenette, a bedroom with a 140cm bed, a shower room and a separate WC.
This apartment has a 2-star furnished tourist accommodation classification.
Housekeeping category: C
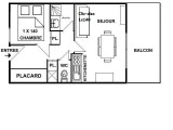
2-room apartment on the 1st floor of the residence without lift (2 floors to climb), south/east facing with balcony.
The apartment has a living room with a 140cm sofa bed, a fully-equipped kitchenette, a bedroom with a 140cm bed, a shower room and a separate WC.
This apartment has a 2-star furnished tourist accommodation classification.
Housekeeping category: C
Resume
- ACCOMMODATION TYPE :
- two rooms apartment
- Location :
- Les Saisies la traie district
- PETS :
- pets not allowed
- MAXIMUM CAPACITY :
- 4 people
- VIEW :
- mountain
- FLOOR FROM THE GROUND :
- 1st floor
Equipements
- ROOM 1 :
- 1 double bed(s) (size: 140)
- Bedding :
- 2 duvet(s) single
- 2 single cover(s)
- 2 double duvet(s)
- 4 pillow(s)
- PARKING / GARAGE :
- indoor parking with extra charge
- BATHROOMS :
- 1 bathroom(s) with shower
- LAVATORY :
- 1 Separate toilets
- EQUIPMENTS :
- ski locker
- vacuum cleaner
- OUTSIDE :
- balcony




















