3 Room Apartment in Les Saisies 6 people
Presentation
Residence close to the resort centre and shops.
The residence faces south, facing Mont Bisanne.
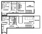
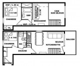
3-room apartment with mezzanine, located on the 3rd floor (only 1 floor to climb), of the residence without lift, south-facing with balcony.
The apartment has a fully-equipped kitchenette, a living room, a bedroom with 1 double bed, a shower room with a separate toilet, a mezzanine floor with a 2x80 pull-out sofa bed, a bathroom and a bedroom with a double bed.
This apartment is officially classed as 2-star furnished holiday accommodation (Meublé de Tourisme).
Housekeeping category: G
The residence faces south, facing Mont Bisanne.
3-room apartment with mezzanine, located on the 3rd floor (only 1 floor to climb), of the residence without lift, south-facing with balcony.
The apartment has a fully-equipped kitchenette, a living room, a bedroom with 1 double bed, a shower room with a separate toilet, a mezzanine floor with a 2x80 pull-out sofa bed, a bathroom and a bedroom with a double bed.
This apartment is officially classed as 2-star furnished holiday accommodation (Meublé de Tourisme).
Housekeeping category: G
Resume
- ACCOMMODATION TYPE :
- three rooms apartment
- Location :
- Les Saisies village center
- PETS :
- pets not allowed
- MAXIMUM CAPACITY :
- 6 people
- FLOOR FROM THE GROUND :
- 2nd floor
- ORIENTATION :
- South orientation
Equipements
- ROOM 1 :
- 1 double bed(s) (size: 140)
- ROOM 2 :
- 1 double bed(s) (size: 140)
- MEZZZANINE :
- 1 pull-out sofa bed
- PARKING / GARAGE :
- indoor parking with extra charge
- BATHROOMS :
- 1 bathroom(s) with bathtub
- 1 bathroom(s) with shower
- LAVATORY :
- 1 Toilets inside the bathroom
- EQUIPMENTS :
- ski locker
- OUTSIDE :
- balcony






















