Studio Apartment in Les Saisies 4 people
Presentation
Residence located in the centre of the resort, close to all amenities.
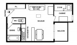
East-facing studio apartment on the 1st floor of the residence without lift (half a floor to go up for access), with balcony.
The apartment has a living room with a 140cm sofa bed and an open-plan fitted kitchenette, a cabin with 2x80cm bunk beds (NB: the top bunk is not suitable for children under 6), a bathroom and separate WC.
This apartment is officially classed as 2-star furnished holiday accommodation (Meublé de Tourisme).
Housekeeping category: B
East-facing studio apartment on the 1st floor of the residence without lift (half a floor to go up for access), with balcony.
The apartment has a living room with a 140cm sofa bed and an open-plan fitted kitchenette, a cabin with 2x80cm bunk beds (NB: the top bunk is not suitable for children under 6), a bathroom and separate WC.
This apartment is officially classed as 2-star furnished holiday accommodation (Meublé de Tourisme).
Housekeeping category: B
Resume
- ACCOMMODATION TYPE :
- one room apartment
- Location :
- Les Saisies village center
- PETS :
- pets not allowed
- MAXIMUM CAPACITY :
- 4 people
- FLOOR FROM THE GROUND :
- 1st floor
- ORIENTATION :
- East orientation
Equipements
- CABIN :
- 2 banked beds
- Bedding :
- 2 duvet(s) single
- 1 single cover(s)
- 1 double duvet(s)
- 5 pillow(s)
- PARKING / GARAGE :
- indoor parking with extra charge
- BATHROOMS :
- 1 bathroom(s) with bathtub
- LAVATORY :
- 1 Separate toilets
- EQUIPMENTS :
- ski locker
- vacuum cleaner
- KITCHEN EQUIPMENTS :
- oven
- OUTSIDE :
- balcony




















