Studio Apartment in Les Saisies 5 people
Presentation
Small residence located at the bottom of the resort, just off the main avenue, close to the Carrets chairlifts and ESF meetings. Sports shop and mini-market nearby.
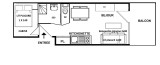
Studio apartment with cabin, located on the 1st floor of the residence without lift (1 1/2 floors to go down), south-facing with balcony.
The apartment has a living room with a 2x80 pull-out sofa bed, an 80cm fold-down bunk bed (NB: the top bunk bed is not suitable for children under 6) and an open-plan fully-equipped kitchenette, a cabin with a 140cm fold-down bed, a shower room and a separate WC.
This apartment has a 2-star furnished tourist accommodation classification.
Housekeeping category: C
Studio apartment with cabin, located on the 1st floor of the residence without lift (1 1/2 floors to go down), south-facing with balcony.
The apartment has a living room with a 2x80 pull-out sofa bed, an 80cm fold-down bunk bed (NB: the top bunk bed is not suitable for children under 6) and an open-plan fully-equipped kitchenette, a cabin with a 140cm fold-down bed, a shower room and a separate WC.
This apartment has a 2-star furnished tourist accommodation classification.
Housekeeping category: C
Resume
- ACCOMMODATION TYPE :
- one room apartment
- Location :
- Les Saisies la traie district
- PETS :
- pets not allowed
- MAXIMUM CAPACITY :
- 5 people
- FLOOR FROM THE GROUND :
- 1st floor
- ORIENTATION :
- South orientation
Equipements
- CABIN :
- 1 double bed(s) (size: 140)
- LIVING ROOM :
- 1 rabattable banked beds
- 1 pull-out sofa bed
- PARKING / GARAGE :
- indoor parking with extra charge
- BATHROOMS :
- 1 bathroom(s) with shower
- LAVATORY :
- 1 Separate toilets
- EQUIPMENTS :
- ski locker
- vacuum cleaner
- OUTSIDE :
- balcony




















