Studio Apartment in Les Saisies 6 people
Presentation
Residence located near the resort centre, close to all amenities.
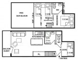
Studio apartment with alcove and mezzanine on the 1st floor of the residence without lift (one and a half floors to climb for access), west-facing with balcony.
The apartment has a living room with an open fully-equipped kitchenette, an alcove with 2x90 bunk beds (NB: the top bunk is not suitable for children under 6 years old), a mezzanine with two areas separated by a curtain, the first with a 140cm bed (and en suite bathroom) and the second with two 90cm beds, a shower room and separate wc.
This apartment is officially classed as 1-star furnished holiday accommodation (Meublé de Tourisme).
Housekeeping category: F
Studio apartment with alcove and mezzanine on the 1st floor of the residence without lift (one and a half floors to climb for access), west-facing with balcony.
The apartment has a living room with an open fully-equipped kitchenette, an alcove with 2x90 bunk beds (NB: the top bunk is not suitable for children under 6 years old), a mezzanine with two areas separated by a curtain, the first with a 140cm bed (and en suite bathroom) and the second with two 90cm beds, a shower room and separate wc.
This apartment is officially classed as 1-star furnished holiday accommodation (Meublé de Tourisme).
Housekeeping category: F
Resume
- ACCOMMODATION TYPE :
- one room apartment
- Location :
- Les Saisies village center
- PETS :
- pets not allowed
- MAXIMUM CAPACITY :
- 6 people
- FLOOR FROM THE GROUND :
- 2nd floor
- ORIENTATION :
- West orientation
Equipements
- Alcove :
- 2 banked beds
- MEZZZANINE :
- 2 single bed(s) (size: 90)
- 1 double bed(s) (size: 140)
- PARKING / GARAGE :
- indoor parking with extra charge
- BATHROOMS :
- 1 bathroom(s) with shower
- LAVATORY :
- 2 Separate toilets
- EQUIPMENTS :
- ski locker
- vacuum cleaner
- KITCHEN EQUIPMENTS :
- dishwasher
- fridge
- OUTSIDE :
- balcony






















